Portfolio
Services
Contact
Portfolio
Services
Contact
Portfolio
Services
Contact
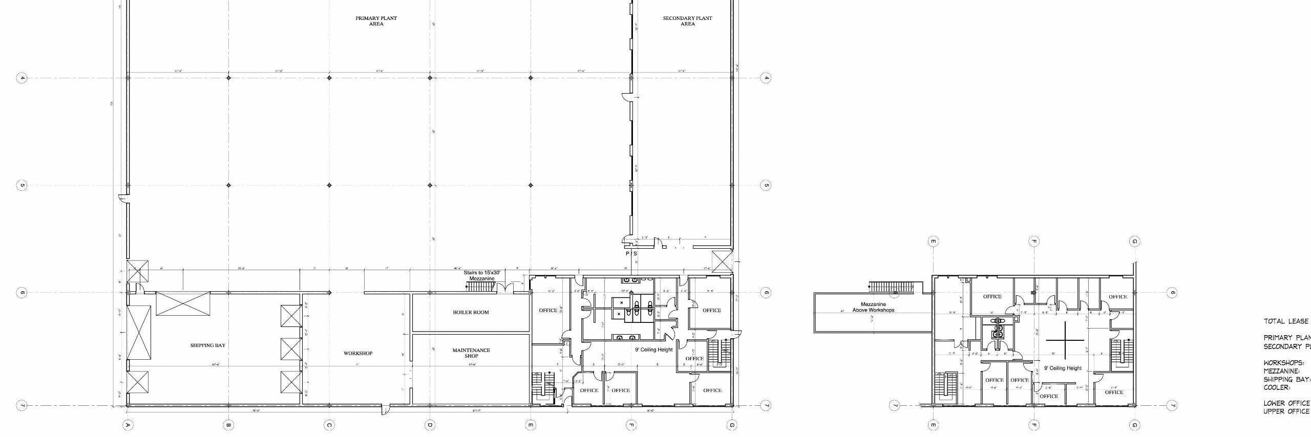
Food Production Facility
Edmonton, AB
Project Size
55,440 sq ft
Project Year
2017
Project Scope
As-Built, Renovation, Technical