Portfolio
Services
Contact
Portfolio
Services
Contact
Portfolio
Services
Contact
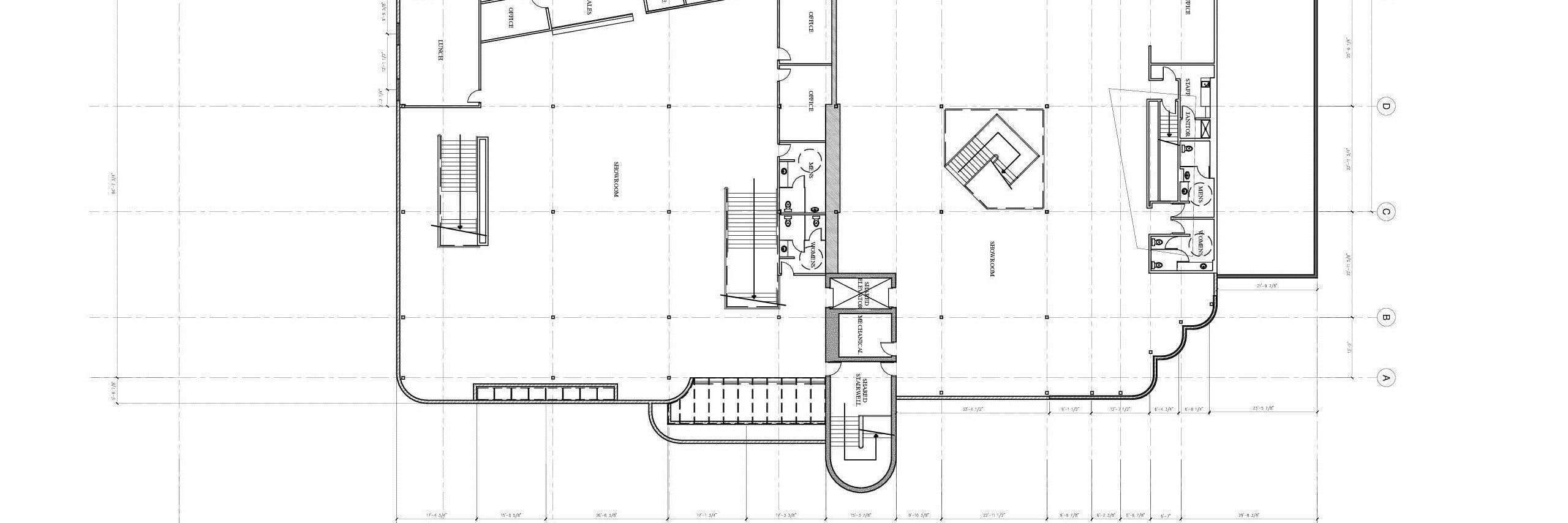
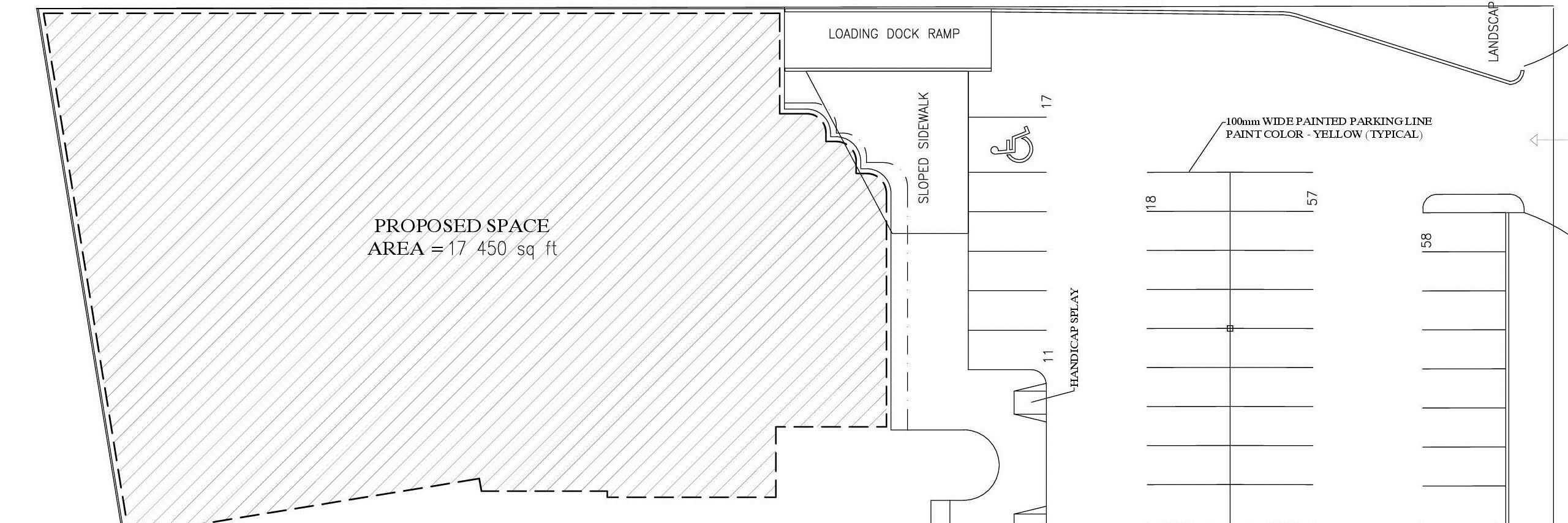
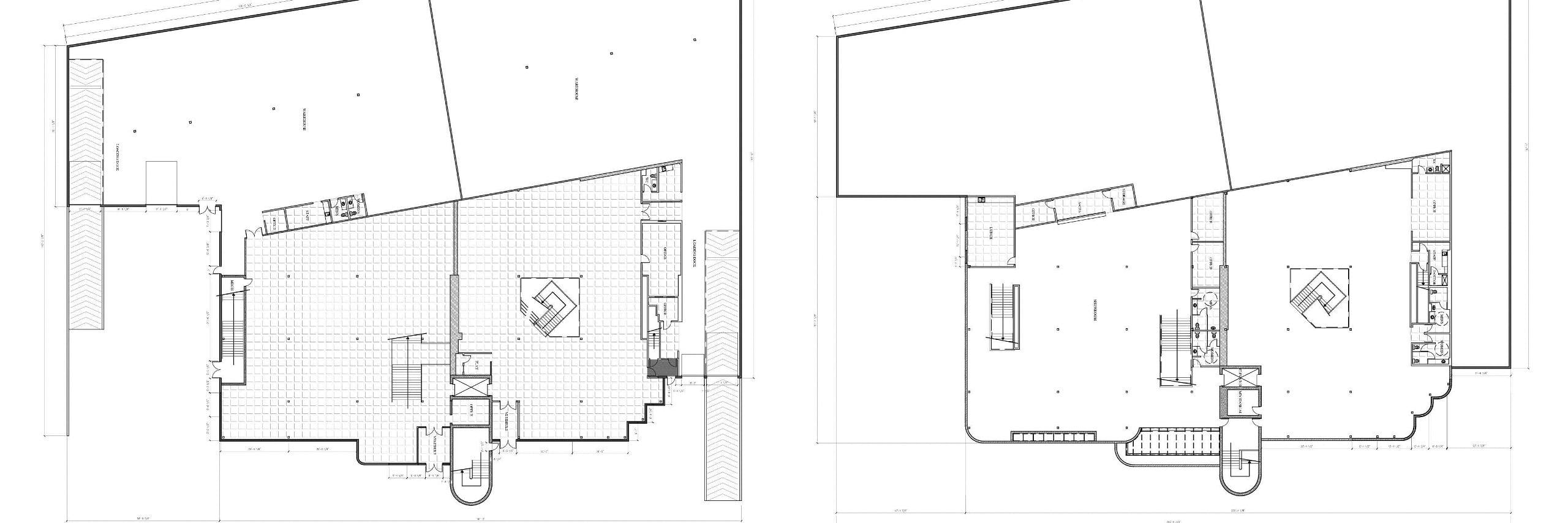
Commercial Retail Review
Edmonton, AB
Project Size
52,810 sq ft
Project Year
2016
Project Scope
As-Built, Feasibility, Technical